Hoofdafbeelding Tweehuizerweg 7
Foto 7
Foto 37
Home Aanbod Tweehuizerweg 7

Tweehuizerweg 7

9909 TL Spijk

€ 385.000,- k.k.

Instapklaar, levensloopbestendig en met vrij uitzicht!

Deze fraaie vrijstaande woning biedt alles wat een gezin zich kan wensen. De woning is aardbevingsbestendig gebouwd in 2018. Met vier ruime slaapkamers, waaronder één op de begane grond, en de badkamer eveneens op de begane grond, is dit huis uitermate geschikt voor zowel (jonge) gezinnen als ouderen die comfort van gelijkvloers wonen waarderen. Daarnaast is een 5e slaapkamer ook makkelijk te realiseren door de grootste kamer te splitsen. Mocht een toilet op de verdieping wenselijk zijn, ook dit behoort tot de mogelijkheden.

Deze woning is niet alleen functioneel, maar ook duurzaam. Het huis is volledig geïsoleerd, beschikt over 12 zonnepanelen, waardoor het niet alleen comfortabel is, maar profiteer je ook van een lagere energierekening. Vanuit de woonkamer heb je een heerlijk uitzicht over natuurlandschap en landerijen. De tuin achter de woning biedt volop privacy en ruimte om te ontspannen, te spelen of te tuinieren. Achter de woning bevindt zich een aangebouwde royale tuinkamer die een perfect verlengstuk van het buitenleven biedt, met het hele jaar door comfort zonder afhankelijk te zijn van het weer.

Spijk is een karakteristiek dorp in de gemeente Eemsdelta met een historische charme. Het dorp heeft een prachtig oud dorpshart met monumentale panden, waaronder een karakteristieke kerk op een cirkelvormige wierdenstructuur.
De omgeving is ideaal voor liefhebbers van wandelen, fietsen en buitenleven. Het dorp heeft een goed voorzieningen niveau met o.a. een kindcentrum, huisarts met apotheek en een supermarkt. Naast de voorzieningen op het gebied van de dagelijkse behoeften kent het dorp een rijk verenigingsleven en meerdere sportverenigingen. Delfzijl en Appingedam liggen op korte afstand met een uitgebreider aanbod aan winkels en voorzieningen.

Nieuwsgierig naar deze woning? Kom langs en ontdek zelf waarom deze woning de perfecte plek is voor jou en je gezin.

Indeling:
Entree, centrale hal met toilet, trapopgang naar de verdieping en toegang tot de woonkamer van ca. 30 m² met aansluitend de open keuken van ca. 13 m². De keuken is voorzien van een inductiekookplaat met afzuigkap. Vanuit de keuken toegang tot de bijkeuken van ca. 5 m² met wasmachine-en drogeraansluiting, de CV opstelling en een doorgang naar de serre van ca. 24 m² waar je middels tuindeuren toegang hebt tot de achtertuin. De slaapkamer van ca. 13 m² met aansluitend de badkamer van ca. 5 m² zijn ook te bereiken vanuit de centrale hal. De badkamer is voorzien van een inloopdouche met sunshower, infraroodpaneel, wastafel en vloerverwarming. De begane grond m.u.v. de badkamer en toilet is voorzien van een PVC vloer.

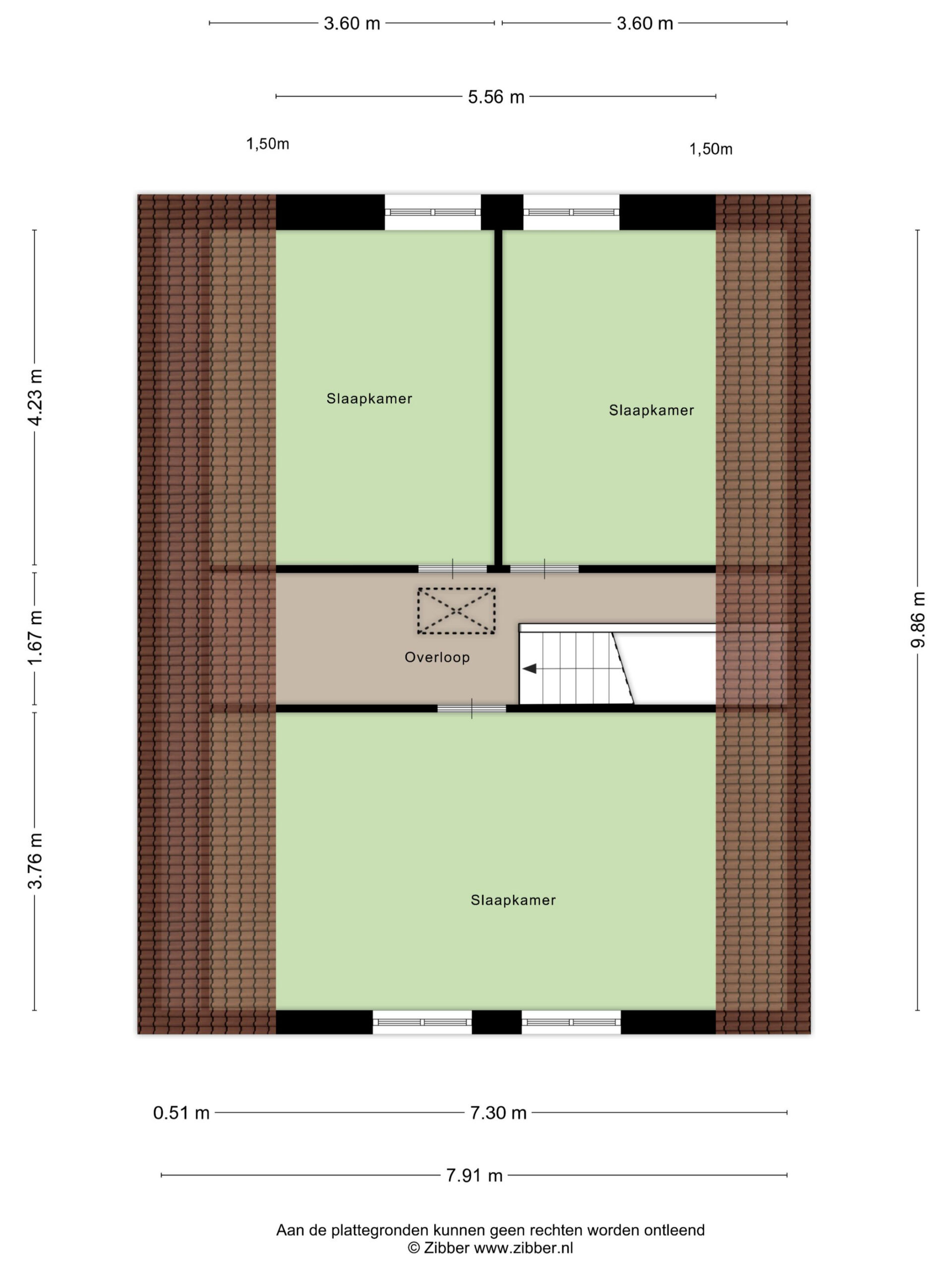
Middels een overloop op de verdieping toegang tot 3 slaapkamers van ca. 12, 12 en 21 m². De gehele bovenverdieping is voorzien van een laminaatvloer en wordt verwarmd middels radiatoren.

De genoemde richtprijs is een ' bieden vanaf ' prijs.

Algemeen:
* Woning is snel te aanvaarden
* € 7.000,- SNN subsidie beschikbaar voor koper, aanvragen voor 31-05-2026
* aardbevingsbestendig gebouwd (2018)
* 12 zonnepanelen
* waterontharder
* glasvezelkabel in maart 2026
* Houten met kunststof bekleed tuinberging 2,83 m² bij 2,95 m
* Parkeren op eigen oprit
* Vloerverwarming gehele begane grond
* Extra brede binnendeuren begane grond

Algemeen

  • StatusBeschikbaar
  • Koopprijs€ 385.000,- k.k.
  • AanvaardingIn overleg

Bouwvorm

  • Soort objectWoonhuis
  • Soort woningEengezinswoning
  • Type woningVrijstaande woning
  • Bouwjaar2018
  • BouwvormBestaande bouw
  • LiggingenAan rustige weg, Vrij uitzicht

Indeling

  • Woonoppervlakte139 m2
  • Perceeloppervlakte419 m2
  • Inhoud603 m3
  • Aantal kamers5
  • Aantal slaapkamers4
  • Aantal badkamers1

Energie

  • EnergieklasseA
  • VerwarmingCV ketel, Vloerverwarming gedeeltelijk
  • C.V.-KetelNefit Topline
  • Bouwjaar C.V.-Ketel2015
  • WarmwaterCV ketel
  • IsolatieDakisolatie, Muurisolatie, Vloerisolatie, Dubbelglas, HR glas
  • CombiketelJa
  • BrandstofGas
  • EigendomEigendom

Buitenruimte

  • TuinAchtertuin, Voortuin
  • HoofdtuinAchtertuin
  • Oppervlakte206 m2
  • Ligging hoofdtuinWest
  • AchteromJa
  • Kwaliteit tuinNormaal

Bergruimte

  • Schuur / BergingVrijstaand hout
  • IsolatieGeen isolatie
  • Totaal aantal1

Parkeergelegenheid

  • Parkeer faciliteitenOp eigen terrein
  • GarageGeen garage

Dak

  • Soort dakZadeldak
  • Materiaal dakPannen

Overig

  • Permanente bewoningJa
  • Onderhoud binnenGoed
  • Onderhoud buitenGoed
  • Huidig gebruikWoonruimte
  • Huidige bestemmingWoonruimte

Uithuizen

M.J. Bultenastraat 6
9981 JB Uithuizen
+31595 412 591